コロナ禍の不況などどこ吹く風と、不動産業界の一部が好景気に沸いている。テレワーク中心となり、都市部のライフスタイルが変化したことが一因だ。自然豊かな地域の、広い家に移り住みたいという人々が増え、今年1月の総務省の発表によると、東京から転出した人は40万人を超えた。
笑ってしまう「なにこれ?」間取り
たしかに、毎日通勤する必要がないのなら、わざわざ高い家賃を払って都心に住む必要はない。どれ、わが家もここらで狭い借家暮らしから抜け出すいい機会かと、住宅情報サイトを見てみると──。思わず「なにこれ?」と笑ってしまう間取りの物件がちらほら。
物件を選ぶうえで、まず目に飛び込んでくるのは間取り図だ。この間取り図に魅せられた“間取ラー”なる人々がいる。間取ラーが高じて、おもしろ間取りの書籍まで制作してしまったライターのジャンヤー宇都氏に、不思議な間取りの謎を聞いてみた。
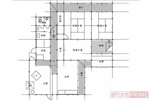
【1】図に見慣れぬ“くど”の文字
コロナ禍で、都会を離れて地方へ移り住もうという人も多いだろう。
「いっそのことIターンもいいなぁ」と、大分県のとある地方都市が運営する空き家サイトをのぞいてみると……。築100年の古民家を発見! 古民家を今風にリフォームして、などと想像しているとその物件の間取りには、見慣れない文字が─。
「いくら地方とはいえ、間取り図に『くど』と書いてある物件はなかなかないです(笑)。『くど』とは、かまどのこと。土間も手つかずのようで、昭和3年築の雰囲気がそのまま残っているのがいいですね」(ジャンヤー宇都さん、以下同)
なんと、くどの隣には井戸がある。しかもよく見ると、家の中と外、両方から井戸を利用できる仕組みとなっているではないか! 先人の知恵に感動!
「くどの煙を、井戸のスペースから外に出すための工夫かもしれません。この井戸が今も使えるとしたら、大変貴重です」
土間の隣に設けられた台所には、間取り図を見る限りではシンクが置かれているようだ。くどを使わずとも調理できるよう、最低限のリフォームはされているらしい。部屋は1階と2階合わせて7つの和室があり、今風に言えば7DKというところか。
「ふすまを取りはずすと大きなひと部屋になり、親戚一同を招いて冠婚葬祭を執り行える便利な間取りです。昔の日本建築ならではですが、部屋がふすまで仕切られているだけなので、プライバシーの確保は厳しいですね(笑)」
昭和初期の住宅では、家族の共用部分と個室の境目があいまいなのが一般的だった。
「子ども部屋や夫婦の寝室などがきっちりと分けられ、個室化が進むのは昭和30年代から。これを境に、日本の住宅はプライベート空間重視の間取りへと大きく変化していきます」
ちなみにこちらは分譲物件で、価格は未定。床の傷みがひどいため、住むには修繕が必要とのことだ。






















