トレンド
2021/5/23

ホントに存在するの? “くど”や能舞台付き!「珍しすぎる間取り」爆誕ウラ事情

不動産賃貸流行
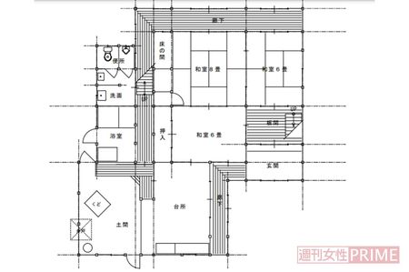
ナニコレ間取り
[写真 1/6枚目] ナニコレ間取り
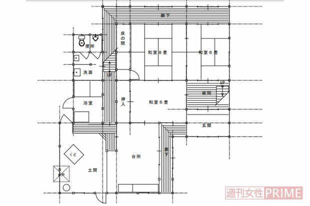
間取り
[写真 2/6枚目] 間取り
【間取り2】
[写真 3/6枚目] 【間取り2】
【間取り3】
[写真 4/6枚目] 【間取り3】
【間取り4】
[写真 5/6枚目] 【間取り4】
※写真はイメージです
[写真 6/6枚目] ※写真はイメージです
この写真の記事へ戻る

Photo Ranking

流行の最新記事

広告を見ると、記事の続きを読むことが可能になります
続きを読む
ページをリロードする
TOPに戻る